12.608,40 LEI / Buc
* pretul contine TVA
Verificare colet la livrare
Plata in 12 rate fara dobanda
Cadouri garantate la comenzi de peste 250 RON
Transport gratuit la comenzi de peste 300 RON
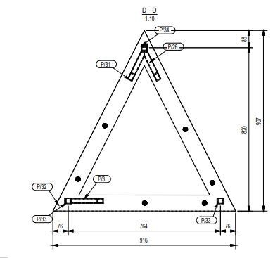
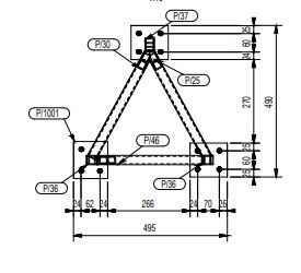
Stalpul este modular, se poate monta usor si rapid. este format din 3 tronsoane cu inaltimea de 3 metri fiecare.
La varf stalpul este prevazut cu sistem de fixare catarg cu inaltimea de 6 metri. Astfel stalpul are inaltime variabila de la 9 la 15 metri
Un set de stalp cuprinde ancora de fundatie, tronsoane de stalpi, catarge, placute de racordare.
Dimensiunile stalpului autoportant sunt de la 9m la 15 m.
Montarea stalpului autoportant se face prin folosirea unor piulite, suruburi, saibe, care sunt livrate impreuna cu tronsoanele stalpilor. Nu este necesara nici un aparat, nici o unealta speciala.
Stalpul este prevazut cu ureche metalica pentru conecatrea unui eventual contor de lovituri trasnet.
Conform normativului I7 stalpul poate fi considerat coborare naturala catre priza de pamant
Etapele de montaj ale stalpului incep cu relizarea fundatie si montarea ancorelor de fixare, urmeaza montajul treptat incepand de la primul element ( cel cu baza de 700mm ) si terminand cu montajul catargului de max 6metri (telescop componibil 3+3). Fixarea catargului se face in interiorul stalpului autoportant in ghidajul special prevazut, acesta permitand si reglajul inaltimii.
Stalpul este fabricat din teava rectangulara galvanizata.
Greutate totala aproximativ 200 kg
Vedere in sectiune amprenta

Vedere in sectiune flansa 2

vedere in sectiune flansa 3

Vedere seciune flansa 4

Pentru a adăuga o întrebare, te rugăm autentifică-te.
Nu există întrebări momentan.
Ai cumparat sau primit acest produs? Spune si altora parerea ta.
Avem plăcerea de a-ți prezenta programul nostru dedicat electricienilor, o oportunitate de a deveni partenerul nostru la Materiale Electrice!
Odată intrat în acest program, te vei bucura de mai multe avantaje:
Activează contul de electrician în 3 pași simpli:
Pentru a putea avea un cont de electrician pe site-ul www.materialeelectrice.ro
PASUL 2
Ne trimiți copie CIF la adresa
office@materialeelectrice.rode pe adresa cu care te-ai înregistrat.
PASUL 3
Primești un email de confirmare și te bucuri de prețurile tale speciale.
Rata de 1.050,70 LEI / luna