Structura metalica TRV pentru 12 panouri fotovoltaice, configuratie 2x6, inclinare 25 grade TRV

  • Cod: Trv-6+6sol 25 grade
  • Producator: TRV
  • Garantie: 24 luni

3.100,06 LEI / Set

* pretul contine TVA

Plata în 12 rate fara dobandă

Rata de 258,33 LEI / luna

Cumpara acum, plateste mai tarziu prin

Verificare colet la livrare

Plata in 12 rate fara dobanda

Cadouri garantate la comenzi de peste 250 RON

Transport gratuit la comenzi de peste 300 RON

Descriere produs

    • Structura metalica TRV 2x6 cu inclinare de 25 grade este proiectata pentru montajul panourilor fotovoltaice in sisteme fixe, oferind o structura solida si fiabila pentru instalatii de capacitate mai mare. Este realizata din profile metalice formate la rece, optimizate pentru rezistenta mecanica si durabilitate in exploatare indelungata.

    • Configuratia 2x6 permite montarea a pana la 12 panouri fotovoltaice, fiind potrivita pentru instalatii rezidentiale extinse, comerciale sau industriale. Unghiul de inclinare de 25 grade este ales pentru a asigura un randament energetic optim pe parcursul anului, in special pentru sisteme fotovoltaice fixe la sol.

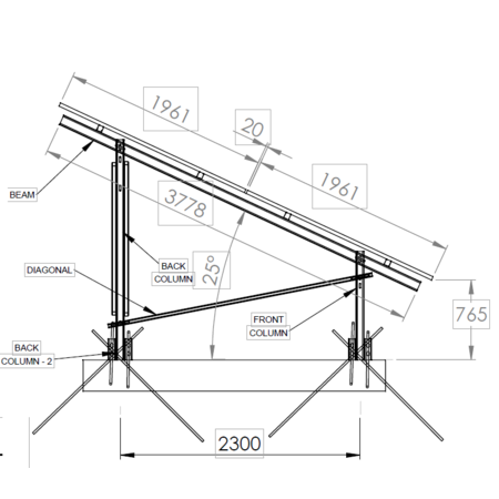
    • Structura este compusa din stalpi frontali si posteriori, grinzi principale, pane longitudinale duble si elemente de rigidizare diagonale. Aceasta configuratie asigura o distributie uniforma a sarcinilor generate de greutatea panourilor, vant si zapada, contribuind la stabilitatea ansamblului.

    • Sistemul este proiectat pentru montaj eficient si precis, cu elemente clar dimensionate si imbinari simple, fiind usor de integrat in proiecte fotovoltaice standard, fara adaptari suplimentare ale structurii.

    Date tehnice:

    • Tip produs: structura metalica pentru panouri fotovoltaice

    • Configuratie: 2x6 panouri

    • Unghi inclinare: 25 grade

    • Lungime grinda principala: 3778 mm

    • Lungime pane: 3100 mm si 3924 mm

    • Stalpi frontali: 1040 mm, profil CC80x50x15x2

    • Stalpi posteriori: 2110 mm, profil CC80x50x15x2

    • Grinzi: profil CC100x50x15x2

    • Pane: profil CC50x60x10x2

    • Contravantuiri si diagonale: profil CC40x40x10x2

    • Material: otel format la rece

    Avantaje:

    • Structura rigida si stabila pentru instalatii fotovoltaice de capacitate mare

    • Unghi optim pentru productie energetica eficienta

    • Configuratie modulara, potrivita pentru extindere

    • Profile metalice dimensionate pentru siguranta si durabilitate

    • Montaj rapid si aliniere precisa a panourilor

    Exemple de utilizare:

    • Instalatii fotovoltaice la sol pentru locuinte mari

    • Structuri suport pentru panouri fotovoltaice comerciale

    • Platforme fotovoltaice fixe pentru aplicatii industriale

    • Proiecte fotovoltaice on grid si off grid

Beneficii pentru Electricieni

Alatura-te comunicatii noastre creandu-ti un cont de profesionist. Ai acces la:

  • Preturi preferentiale
  • Ustensile si cataloage exclusiviste
  • Adaugare in catalogul de electricieni autorizati

Întrebări despre produs

Pentru a adăuga o întrebare, te rugăm autentifică-te.

Nu există întrebări momentan.

Opiniile clientilor despre produs

Ai cumparat sau primit acest produs? Spune si altora parerea ta.

CADOURI GARANTATE

Cumpără de minim 250 RON și primești produse cadou din partea noastră.