Sistem montaj panouri fotovoltaice la sol 2x5 , inclinatie 25 grade, structura otel zincat TRV

  • Cod: Trv-5+5sol 25 grade-duplicate
  • Producator: TRV
  • Garantie: 24 luni

2.818,23 LEI / Set

* pretul contine TVA

Plata în 12 rate fara dobandă

Rata de 234,85 LEI / luna

Cumpara acum, plateste mai tarziu prin

Verificare colet la livrare

Plata in 12 rate fara dobanda

Cadouri garantate la comenzi de peste 250 RON

Transport gratuit la comenzi de peste 300 RON

Descriere produs

Maximizeaza performanta sistemului tau solar cu structura de montaj la sol 2x5 TRV. Acest sistem este proiectat special pentru o configuratie de 10 panouri fotovoltaice, oferind o inclinatie fixa de 25 grade pentru o captare optima a energiei pe tot parcursul anului.

Componente incluse si detalii tehnice:

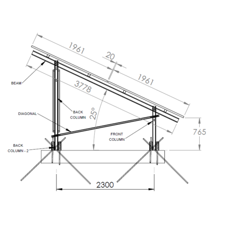
  • Structura sustinere: Include 3 stalpi frontali cu lungimea de 1040 mm si 3 stalpi posteriori de 2110 mm.

  • Sistem de grinzi: Echipat cu 3 grinzi principale tip CC100X50X15X2, avand o lungime de 3778 mm fiecare.

  • Profile sustinere panouri (Purlins): Setul contine 4 profile Purlin-1 de 2600 mm si 4 profile Purlin-2 de 3270 mm.

  • Elemente de rigidizare: Include 4 contravanturi de 2970 mm si 3 diagonale de 2575 mm pentru o stabilitate mecanica superioara la vant si zapada.

  • Materiale de calitate: Toate componentele sunt realizate din profile de otel zincat cu grosime de 2 mm, garantand rezistenta maxima.

Avantaje tehnice:

  • Stabilitate ridicata: Configuratia cu puncte principale de sprijin distribuite uniform asigura preluarea eficienta a sarcinilor.

  • Durabilitate: Utilizarea otelului zincat ofera protectie anticoroziva excelenta in mediu exterior.

  • Montaj facil: Proiectata pentru o asamblare rapida, structura respecta toate cotele tehnice necesare unei instalari precise pe sol.

ATENTIE ! PRET VALABIL DOAR CU RIDICARE DE LA SEDIUL NOSTRU !
SAU TRANSPORTUL PENTRU ACEST PRODUS SE CALCULEAZA SEPARAT, NU ESTE GRATUIT !

Beneficii pentru Electricieni

Alatura-te comunicatii noastre creandu-ti un cont de profesionist. Ai acces la:

  • Preturi preferentiale
  • Ustensile si cataloage exclusiviste
  • Adaugare in catalogul de electricieni autorizati

Întrebări despre produs

Pentru a adăuga o întrebare, te rugăm autentifică-te.

Nu există întrebări momentan.

Opiniile clientilor despre produs

Ai cumparat sau primit acest produs? Spune si altora parerea ta.

CADOURI GARANTATE

Cumpără de minim 250 RON și primești produse cadou din partea noastră.